3,582,000 EGPInstallment Available
apartment for sale 156m new cairo 5th settlement beit al watan
Is the price fair?
Know the true value of the property before buying
9
apartment for sale 156m new cairo 5th settlement beit al watan
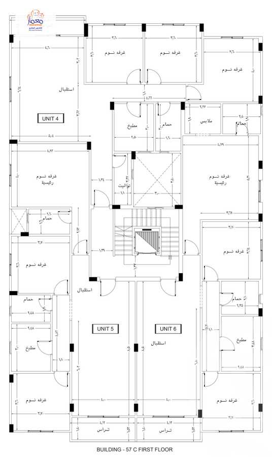
Apartments.Fifth Neighborhood
156 m²
3 rooms
2 bathroom
Semi Finished
Listing Details
Floor
1View
PoolYear Built
2025Payment Method
InstallmentsSeller Type
BrokerPrice Per Meter
22,962 EGP/M²Listing ID
EG-6540078Looking for properties from the owner
Use “From Owner” filter with Aqarmap Pro.
Listing Description
Travel Time
Arrival time
Login to see travel timeLogin








