40,000,000 ج.م
ستاند الون مودرن ريسيل للبيع من المالك مباشره في كومباوند لافيستا سيتي بارسل 8
هل السعر عادل ؟
أعرف السعر الحقيقى للعقار قبل الشراء
7
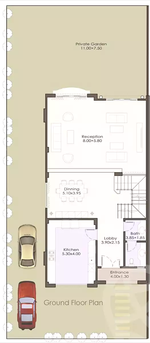
ستاند الون مودرن ريسيل للبيع من المالك مباشره في كومباوند لافيستا سيتي بارسل 8
فلل.كمبوند لافيستا سيتى
560 متر²
6 غرف
6 حمام
بدون تشطيب
تفاصيل الإعلان
تطل على
حديقةسنة البناء
2026طريقة الدفع
نقداًنوع المعلن
مالك عقارسعر المتر
71,429 جنيه/متر²رقم الإعلان
EG-6756086وصف الإعلان
مزايا العقار
- أمن
- شرفة
- تكييف
- غرفة خدم
- جراج مغطى
- عداد مياه
وقت الوصول للشقة
الوصول من خلال
سجّل الدخول لعرض وقت الوصول من موقعك تسجيل الدخول










